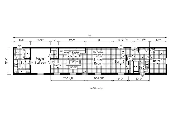
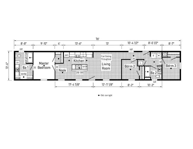
The Cavco Edge 14763C
The Cavco Edge 14763C Single Wide
1,013sq. ft. • 3 bed • 2 bath
Why Buy From Liechty Homes?
Trusted for over 68 years.
Unlimited Floor Plans.
Professional Sales Team and no pressure approach.
Large selection of display homes to tour on our locations.
Home customization options.
Service & support.

