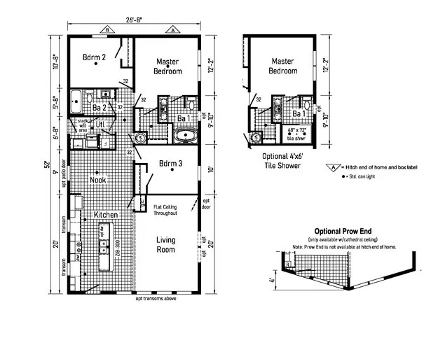
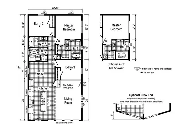
The Westlake Retreat 28523E Manufactured Home
1,387sq. ft. • 3 bed • 2 bath
Why Buy From Liechty Homes?
Trusted for over 68 years.
Unlimited Floor Plans.
Professional Sales Team and no pressure approach.
Large selection of display homes to tour on our locations.
Home customization options.
Service & support.

