The Patriot Series
Modular And Manufactured Home Brochures
Roosevelt Modular Home
Click Floor Plan To Download Brochure
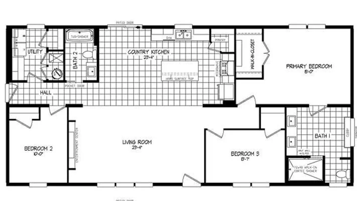
Roosevelt Manufactured Home
Click Floor Plan To Download Brochure
Washington Modular home
Click Floor Plan To Download Brochure
The Anthony
Click Floor Plan To Download Brochure
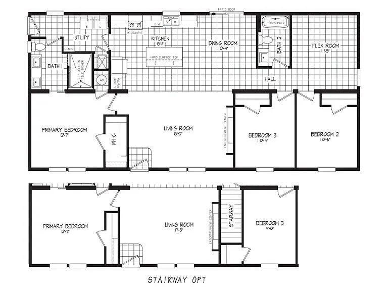
Washington Manufactured Home

